CITY HALL – AGHIA PARASKEVI

PROGRAM
CITY HALL
LOCATION
AGHIA PARASKEVI
YEAR
2001
STATUS
PROJECT

NATIONAL COMPETITION – 1ST MENTION

GALLERY

DRAWINGS

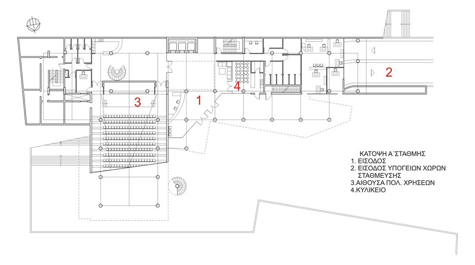
DESCRIPTION

The current project is designed based on three main characteristics. The proximity of the plot to the City’s central square, the limited depth of the plot and the intention of producing a large and inviting outer space that will be used by the public so as to create a new gathering point for the City.

At the same time the main designing axes that determined the morphology of the project were the plot’s main axis that coincides to the main axis of the City’s central square and the axis that is parallel to the principal facade of the plot and would link the project to the primary circular road.


The heart of the project is the Cultural Activities Area that is directly accessed from the City’s central square and gives the project its unique character by connecting it to the City’s cultural history.