National Library of Czech Republic

PROGRAM
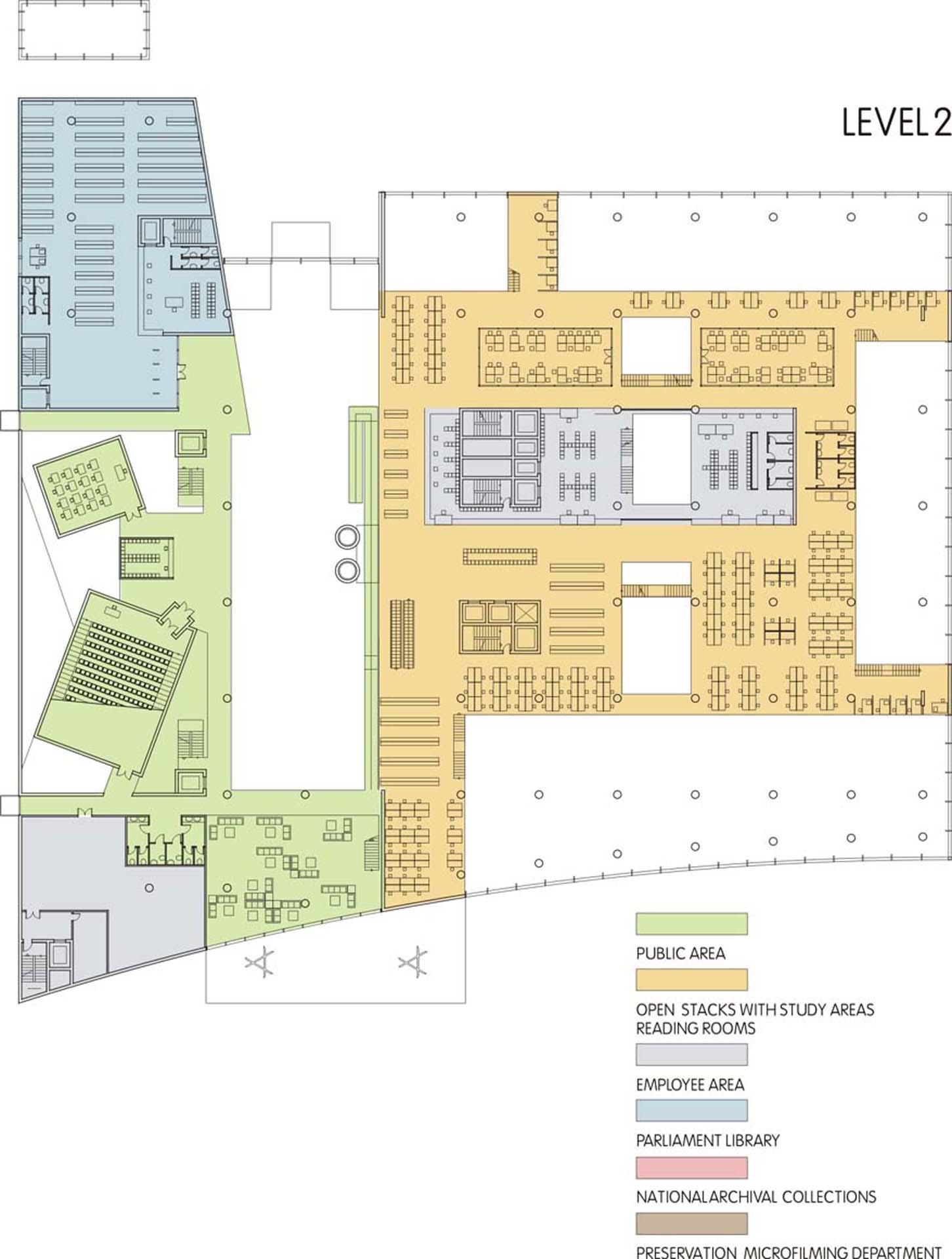
LIBRARY
LOCATION
PRAGUE, CZECH REPUBLIC
YEAR
2006
STATUS
PROJECT

INTERNATIONAL COMPETITION

GALLERY

DRAWINGS

 

DESCRIPTION

The four-storey mass of the building covers the biggest part of the project plot, like a typical urban block of the city. Its South side follows the flow of Moldau River. The harsh, shut part in the West creates a limit towards the City, while the rest of the sides are open and are welcoming the crowd. Water, the main element of the city, surrounds the building. The horizontal mass of the building constitutes the base of the vertical twin towers of the National Archives. The vertical surfaces of the towers create a “screen-building” on which the surrounding space, as well as the whole city, are projected. On the top, the planted deciduous trees create the continuation of the surrounding nature. They have an aesthetic result which leads to the roots of the Gothic Architecture and a symbolic one, which implies the constant evolution and perpetual growth since they have their roots deeply immersed in its past and in its History. In-between the trees, is being created a “belvedere”, accessed directly from the Lobby. With amazing views of the old and the new city this space constitutes a place that will attract visitors.The building’s resemblance to its surrounding buildings and the architectural character of the whole city is the most important fact that influenced the procedure of designing. We create a gathering point of endless changing nature and at the same time, a vertical garden which could also serve as a piece of urban landscape and an important landmark for the city. The building is composed by clear geometric volumes, which despite their size, are harmoniously blended into their surroundings. By combining monumentality and human scale the building embodies its special character and place for the city. The aim is to create an architectural landmark for Prague, so that the building itself will constitute a genuine catalyst for future urban regeneration.